3 Zimmer Wohnung mit Balkon (Wohnung Nr. 5)
- Esslingen
Grunddaten
- Objekt-ID
- Baujahr
- Verfügbarkeit
- Objektart
- Zustand
- 2024178_5
- 2023
- -
- Wohnung
- Erstbezug
Flächenaufstellung
- Wohnfläche
- Anzahl Zimmer
- ca. 84 m²
- 3 Zimmer
Raumangebot und Ausstattung
- Stellplätze
- Stellplatzmiete
- Küche
- Heizung
- Energieausweis
- Tiefgaragenstellplatz(1)
- -
- -
- Luftwärmepumpe - Fussboden
- Energiebedarfsnachweis: 19.80 kWh/(m²a), Energieklasse A+
Allgemeine Beschreibung
Das 9-Familienhaus besticht durch seine moderne Architektur mit einer eleganten weißen Fassade und anthrazitfarbenen Fenstern, die einen zeitgemäßen und stillvollen Eindruck vermitteln.
Jede der neun Wohneinheiten bietet großzügigen Wohnraum und wurde mit hochwertigen Materialien und modernster Technologie ausgestattet. In sämtlichen Wohnungen wurden Fliesen in Holzoptik verlegt. In den Badezimmern und WC-Bereichen finden sich ansprechende graue Fliesen. Zudem ist eine einzelraumgesteuerte Fußbodenheizung in allen Räumlichkeiten vorhanden sowie elektrische Rollläden. Die offenen Grundrisse schaffen eine luftige und einladende Atmosphäre, während die bodentiefen Fenster für eine helle und freundliche Wohnatmosphäre sorgen. In den Küchenbereichen sind keine Einbauküchen vorhanden, die Mieter sind für die Einrichtung selbst verantwortlich.
Die Immobilie verfügt über eine Vielzahl von Annehmlichkeiten, darunter ein Aufzug, der einen barrierefreien Zugang zu allen Etagen ermöglicht, sowie großzügige Balkone oder Terrassen. Die Wohnungen bieten sowohl barrierearme als auch barrierefreie Zugänge. Insgesamt stehen 8 Tiefgaragenstellplätze sowie ein zusätzlicher Parkplatz im Freien zur Verfügung. Jeder Wohnung ist im Untergeschoss ein Keller zugewiesen, sowie zwei Fahrradabstellplätze, wovon einer eine Lademöglichkeit für E-Bikes bietet. Des Weiteren wird ein Spielplatz direkt am Haus errichtet.
Erleben Sie modernen Komfort und stilvolles Wohnen in dieser Immobilie – Willkommen in Ihrem neuen Zuhause.
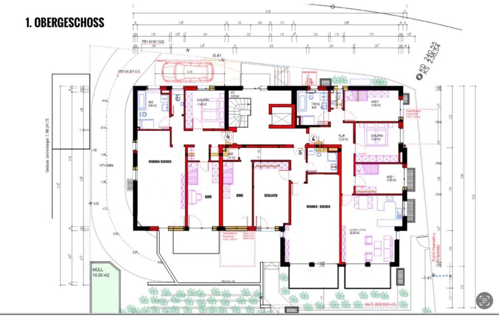
WOHNUNG NR. 5 Obergeschoss 3 Zimmer 84 m²
· innenliegendes Badezimmer
· Abstellkammer
· Großer offener Wohn- und Essbereich
· Balkon
· Garderobennische
· Rollläden elektrisch
Die Gesamtmiete von 1.850,00 € besteht aus : 1.510,00 € Kaltmiete, 255,00 € Nebenkosten und 85,00 € Tiefgaragenstellplatz
Das Immobilienvideo / Wohnungsrundgang finden Sie auf unserer Homepage
www.ricotta-immobilien.de oder unter folgendem Link:
https://www.ricotta-immobilien.de/immobilie/neubauwohnungen-zu-vermieten-9-hochwertige-wohnungen/
Lage
Das Mehrfamilienhaus befindet sich in Esslingen-Mettingen, umgeben von malerischen Weinbergen, die mit ihrem Charme zum gemütlichen Spazieren und Verweilen einladen. Diese einzigartige Lage ist ein wahres Paradies für Naturliebhaber, die hier eine Fülle von Möglichkeiten zum Entdecken und Entspannen finden.
In unmittelbarer Nähe finden Sie alle Annehmlichkeiten des täglichen Bedarfs, was Ihnen ein Höchstmaß an Komfort bietet. Zusätzlich befinden sich in der Umgebung drei Kindergärten sowie eine Grundschule.
Zusätzlich ist die Innenstadt von Esslingen in nur wenigen Autominuten erreichbar, wo eine Vielzahl von Geschäften, Einkaufsmöglichkeiten, medizinischer Versorgung, Apotheken, sowie gemütliche Cafés und erstklassige Restaurants darauf warten, erkundet zu werden.
Die herausragende Anbindung an den öffentlichen Nahverkehr, insbesondere an die S-Bahnlinie S1, macht die Wohnung zu einem idealen Ausgangspunkt für Pendler und Stadterkundungen gleichermaßen. Die nächstgelegene Haltestelle ist nur einen kurzen Spaziergang entfernt und ermöglicht eine bequeme und schnelle Erreichbarkeit verschiedener Ziele.
Mettingen besticht nicht nur durch seine Nähe zu Stuttgart und Esslingen, sondern auch durch seine schnelle Anbindung an den Flughafen und andere Reiseziele über die Autobahn A8. Die ideale Lage dieses Stadtteils verbindet die Vorzüge einer ruhigen, naturnahen Umgebung mit der Nähe zu urbanen Zentren und Reisemöglichkeiten.
Kosten
- Kaltmiete / Monat
- Gesamtmiete / Monat
- Kaution
- 151.000 €
- -
- 4.530 €
Sie sehen gerade einen Platzhalterinhalt von Google Maps. Um auf den eigentlichen Inhalt zuzugreifen, klicken Sie auf die Schaltfläche unten. Bitte beachten Sie, dass dabei Daten an Drittanbieter weitergegeben werden.
Mehr Informationen










