- Denkendorf
Neuwertige 4-Zimmer Wohnung mit hochwertiger Ausstattung und Tiefgaragenstellplatz
Grunddaten
- Objekt-ID
- Verfügbarkeit
- Objektart
- Baujahr
- Zustand
- 2024210
- Verkauft
- Wohnung
- 2020
- -
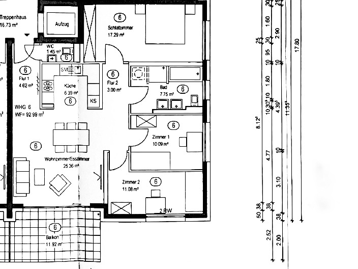
Flächenaufstellung
- Wohnfläche
- Anzahl Zimmer
- ca. 93 m²
- 4 Zimmer
Raumangebot und Ausstattung
- Stellplätze
- Stellplatzkaufpreis
- Heizung
- Energieausweis
- Besonderheiten
- Balkon
- Tiefgaragenstellplatz(1)
- -
- -
- -
- -
- 1
Allgemeine Beschreibung
Diese wunderschöne 4-Zimmer Wohnung, die absolut keine Wünsche offen lässt, wurde 2020 erbaut und bietet neben einer sehr hochwertigen Ausstattung zudem eine zeitgemäße Wohnatmosphäre und schafft einen absoluten Wohlfühlcharakter.
Mit dem Aufzug, welcher Sie barrierefrei direkt aus der Tiefgarage und aus dem Erdgeschoss auf die Wohnungsetagen führt, gelangen Sie in das erste Obergeschoss zu dieser traumhaften Wohnung.
Neben 4 einladenden und gut geschnittenen Zimmern umfasst die Wohnung eine traumhafte Küche, ein modernes Tageslichtbad, sowie ein separates Gäste WC.
Beim Öffnen der Wohnungseingangstür lädt ein großer Flur zum Betreten der Wohnung ein und gibt direkt den Blick frei auf eine große, bodentiefe Fensterfront im Wohnbereich. Vorab finden Sie zunächst linker Hand das schöne, hell geflieste Gäste WC, bevor Sie in den wunderschönen offenen Wohn- Essbereich mit offener Küche und Zugang zu dem großen, sonnenverwöhnten und überdachten Süd-Balkon gelangen. Durch die große, hochwertige Schiebetür erweitern Sie bei wunderbarem Wetter den Balkon einfach in Ihren Wohnbereich, wohingegen der überdachte Balkon auch bei trübem Wetter zum Verweilen einlädt und damit den perfekt geschützten Platz im Freien bietet um entspannte Stunden zu verbringen. Der Balkon bietet Ihnen ebenfalls den Luxus eines Strom- und Wasseranschlusses.
Die sehr hochwertig eingerichtete Einbauküche mit weißen Hochglanz Fronten, moderner Abzugshaube und Markengeräten ist im Kaufpreis bereits enthalten und lädt zu geselligen Abenden ein. Vom Wohn- Essbereich aus gelangen Sie in das erste, kleinere Zimmer, welches sich hervorragend als Arbeitszimmer anbietet und Ihnen eine perfekte Atmosphäre für Ihren Homeoffice Tag bietet. Anschließend gelangen Sie in das Gäste- oder Kinderzimmer und weiter in das wunderschöne Tageslichtbad mit Doppelwaschbecken, begehbarer und barrierefreier Dusche und Badewanne mit hochwertigen Badkeramiken. Am Ende des Flurs und ruhig gelegen wartet dann noch das großzügig geschnittene Schlafzimmer auf Sie.
Bei dieser Wohnung wurde das Augenmerk neben geschmackvoller Funktionalität auch auf eine erstklassige Ausstattung gelegt, die höchsten Ansprüchen gerecht wird und somit gleichzeitig ein absolut modernes wie auch komfortables und gemütliches Zuhause bietet. So finden Sie in der gesamten Wohnung schöne, graue und großformatige Fliesen für einen einheitlichen, modernen Look und eine pflegeleichte Handhabung vor. Die Fußbodenheizung in der gesamten Wohnung schafft ein angenehmes Raumklima und macht die Wohnung wohlig warm und die elektrischen Rollläden in der gesamten Wohnung bieten zusätzlichen Komfort.
Der Tiefgaragenstellplatz rundet das Angebot dieser großartigen Immobilie perfekt ab und zusätzliche Annehmlichkeiten bietet sich Ihnen durch den Fahrradraum und durch die erweiterten Lager- und Abstellmöglichkeiten in Ihrem großzügigen Kellerabteil.
Lage
Die Immobilie befindet sich in einer dynamischen und gut erschlossenen Lage in Denkendorf. Die Anbindung an den öffentlichen Nahverkehr ist durch die fußläufig erreichbaren Buslinien 119 und N19 hervorragend gewährleistet. In unmittelbarer Nähe finden Sie eine Vielzahl an Annehmlichkeiten und Dienstleistungen, die den täglichen Bedarf abdecken. Dazu zählen mehrere Bäckereien, Restaurants, Arztpraxen, zwei gemütliche Cafés sowie zwei Supermärkte.
Für Freizeit und Erholung stehen Ihnen diverse Grün- und Parkanlagen zur Verfügung, die zu entspannten Spaziergängen und Outdoor-Aktivitäten einladen. Zudem bietet die Umgebung ein Modegeschäft, ein modernes Fitnessstudio, eine gut ausgestattete Bibliothek und eine Tierhandlung. Diese vielfältigen Angebote machen die Lage der Immobilie besonders attraktiv und tragen zu einer hohen Lebensqualität bei.
Kosten
- Kaufpreis
- Stellplatzkaufpreis
- Gesamtkaufpreis
- Käuferprovision
- -
- -
- -
- 2,98 % inkl. Mehrwertsteuer für den Käufer
- Gabriela Ricotta
- IHK Immobilienmaklerin
Sie sehen gerade einen Platzhalterinhalt von Google Maps. Um auf den eigentlichen Inhalt zuzugreifen, klicken Sie auf die Schaltfläche unten. Bitte beachten Sie, dass dabei Daten an Drittanbieter weitergegeben werden.
Mehr Informationen



































