Teilmöblierte sonnendurchflutete 3-Zimmer Wohnung in Unteruhldingen, für 2 Jahre befristet
- Uhldingen-Mühlhofen
vermietet
Grunddaten
- Objekt-ID
- Baujahr
- Verfügbarkeit
- Objektart
- Zustand
- 2023152
- 1998
- Vermietet
- Wohnung
- -
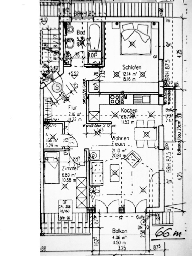
Flächenaufstellung
- Wohnfläche
- Anzahl Zimmer
- ca. 66 m²
- 3 Zimmer
Raumangebot und Ausstattung
- Stellplätze
- Stellplatzmiete
- Küche
- Heizung
- Energieausweis
- Außenstellplatz(1)
- -
- Einbauküche, offen
- Gas - Zentral
- -
Allgemeine Beschreibung
Diese großzügige 3 Zimmer Dachgeschosswohnung liegt im Erholungsort der Gemeinde Uhldingen-Mühlhofen im Bodenseekreis.
Die lichtdurchflutete Wohnung befindet sich in einer sehr gepflegten und ruhigen Wohngegend im 3. Obergeschoss eines 6-Familienhauses und bietet eine wunderbare Aussicht auf den schönen Urlaubsort Unteruhldingen. Die teilmöblierte Wohnung kann befristet über einen Zeitraum von bis zu 2 Jahren angemietet werden.
Die Wohnung verfügt über einen offenen Wohn- und Essbereich mit offener Küche und einem wunderschönen großzügigen Balkon, welcher mit einer Markise ausgestattet ist. Dieser lädt dazu ein den Tag bei einem Glas Wein ausklingen zu lassen. Zusätzlich befindet sich neben der Küche noch ein weiterer kleiner Balkon.
Über den Flur erreichen Sie alle Wohnbereiche. Das helle Tageslichtbad ist mit Badewanne, separater Duschkabine, einem Waschtisch und einem WC modern gestaltet. Ebenso verfügt die Wohnung über einen Abstellraum, welcher zusätzlichen Stauraum bietet. Die Wohnung ist in den Wohnbereichen mit einem wunderschönen Parkett ausgestattet, der Küchenbereich und das Bad sind mit Fliesen verlegt.
Zu der Wohnung gehört ein Keller und ein Außenstellplatz, dieser ist bereits in der Kaltmiete inbegriffen und befindet sich direkt vor dem Haus. Ein Hausmeisterservice rundet dieses Angebot.
Die Wohnung wird BEFRISTET auf maximal 2 Jahre vermietet.
Lage
Die modern möblierte Wohnung liegt zentral im Urlaubs- und Erholungsort Unteruhldingen.
Die Seegemeinde Unteruhldingen ist eine Gemeinde im Bodenseekreis und liegt direkt am wunderschönen Bodensee, eingebettet zwischen Wiesen, Wäldern, Weinbergen und Feldern.
Unteruhldingen liegt zwischen dem wunderschönen Überlingen (9 km) und Meersburg (5 km) und bietet einen hohen Freizeit- und Erholungsfaktor.
Die Wohnung liegt in unmittelbarer Laufnähe zum Bodensee, dem Hafen/Ortsmitte, dem Strandbad (300 m) und der schönen Seepromenade (150 m) mit diversen Einkaufsmöglichkeiten, Cafés und Restaurants, welche Sie sofort in Urlaubsstimmung kommen lässt. Sie ist der perfekte Ausgangpunkt für alle Freizeitaktivitäten, sei es das Radfahren auf den nahelegenden Radwegen, das Baden im See oder der Nutzung des Wassersportangebots sowie das Flanieren an der Uferpromenade.
Hier werden Träume wahr – wohnen, wo andere Urlaub machen.
Kosten
- Kaltmiete / Monat
- Gesamtmiete / Monat
- Kaution
- -
- -
- -
Sie sehen gerade einen Platzhalterinhalt von Google Maps. Um auf den eigentlichen Inhalt zuzugreifen, klicken Sie auf die Schaltfläche unten. Bitte beachten Sie, dass dabei Daten an Drittanbieter weitergegeben werden.
Mehr Informationen




















