- Aichwald / Aichelberg
Wunderschöne Doppelhaushälfte mit sonnigem Garten
Grunddaten
- Objekt-ID
- Verfügbarkeit
- Objektart
- Baujahr
- Zustand
- 2024166
- bezugsfrei
- Haus
- 1995
- -
Flächenaufstellung
- Wohnfläche Gesamt
- Grundstücksgröße
- ca. 124 m²
- ca. 686 m²
Raumangebot und Ausstattung
- Stellplätze
- Heizung
- Energieausweis
- Garage(1)
- Öl - Zentral
- -
Allgemeine Beschreibung
Willkommen in dieser schönen und gepflegten Doppelhaushälfte mit einem sonnigen und großzügigen Gartengrundstück, das auf neue Mieter wartet.
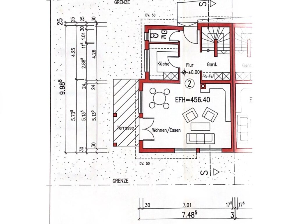
Beim Betreten des Hauses durch den gepflegten Zugang eröffnet sich ein großzügiger Windfang, der ausreichend Platz für Garderobe bietet. Direkt rechts vom Eingangsbereich befindet sich ein Tageslicht-Gäste-WC für die Bequemlichkeit der Bewohner und ihrer Gäste. Auf der linken Seite des Windfangs befindet sich eine geräumige Nische für einen Einbauschrank sowie der Treppenaufgang, der in das Obergeschoss und Untergeschoss führt.
Die Küche, ausgestattet mit einer grauen Einbauküche ohne Elektrogeräte, bietet einen herrlichen Blick in den Garten. Die Fußbodenheizung in der Küche sorgt in den kalten Tagen für warme Füße. Der großzügige Wohn- und Essbereich ist mit hochwertigem Parkettboden ausgelegt und bietet die Möglichkeit, einen Kaminofen zu installieren. Von hier aus gelangt man auf die Terrasse und in den großen Garten mit einem Gartenhäuschen, perfekt für entspannte Stunden im Freien.
Eine Natursteintreppe führt in das Obergeschoss, wo ein großzügiger Bereich mit Eichenparkettboden einladend ist. Dieses Stockwerk beherbergt zwei Kinderzimmer, ein Schlafzimmer mit Zugang zum Balkon sowie ein Tageslichtbad mit Dusche, Badewanne, WC und zwei Waschtischen. Die Fußbodenheizung sorgt hier für wohlige und angenehme Atmosphäre. Eine ausklappbare Dachbodentreppe im Flurbereich führt zur Dachbühne, die zusätzlichen Stauraum bietet. Die unterschiedlichen Dachschrägen verleihen dieser Etage ein besonderes Flair.
Im Untergeschoss befinden sich eine Waschküche, ein Keller- oder Abstellraum sowie ein großer beheizter Tageslicht-Hobbyraum, der auch als Arbeitsraum genutzt werden kann. Zusätzlicher Stauraum ist unter der Treppe verfügbar. Ein separater Heizraum mit einer Öl-Zentralheizung ist ebenfalls vorhanden.
Für zusätzlichen Komfort ist ein Garagenstellplatz vorhanden. Ein weiterer Stellplatz könnte für 40,00 Euro monatlich angemietet werden. Die Nebenkosten in Höhe von 70,00 Euro beinhalten nur die Gebühren für die Grundsteuer und Versicherung. Die Anmeldung für Strom, Wasser und Müll muss der Mieter selbst übernehmen und durchführen. Das Heizöl wird ebenfalls vom Mieter auf eigene Kosten bestellt.
Diese Doppelhaushälfte bietet eine perfekte Kombination aus Komfort, Funktionalität und gepflegtem Ambiente und wartet darauf, von neuen Mietern entdeckt zu werden.
Das Immobilienvideo / Wohnungsrundgang finden Sie auf unserer Homepage
www.ricotta-immobilien.de oder unter folgendem Link:
https://www.ricotta-immobilien.de/immobilie/doppelhaushaelfte-mit-sonnigem-garten/
Lage
Die angebotene Immobilie befindet sich in einer ruhigen Ortsrandlage in Aichelberg, einem Stadtteil von Aichwald. Aichelberg selbst ist ein Ortsteil im Landkreis Esslingen und liegt in der Region Stuttgart. Mit seinen 2300 Einwohnern bietet Aichelberg eine beschauliche Atmosphäre und ist dennoch gut an die umliegenden Städte angebunden.
Die Kreisstadt Esslingen ist lediglich 10 km entfernt, während die Landeshauptstadt Stuttgart in einer Entfernung von 20 km liegt. Diese Nähe zu größeren Städten bietet eine ausgezeichnete Balance zwischen ruhigem Landleben und urbaner Erreichbarkeit.
Die Umgebung von Aichelberg bietet eine Vielzahl von schönen Ausflugszielen und Sehenswürdigkeiten, was für abwechslungsreiche Freizeitmöglichkeiten sorgt. Wander- und Radwege durchziehen die Landschaft, wodurch sich zahlreiche Entdeckungsmöglichkeiten bieten. Eine Bushaltestelle in der Nähe erleichtert zudem die Erkundung benachbarter Ortschaften und Regionen.
Im Ortszentrum von Aichwald, welches schnell erreichbar ist, finden Bewohner alle wichtigen Einkaufsmöglichkeiten und Einrichtungen des täglichen Bedarfs sowie eine Grundschule, was die Lage besonders attraktiv für Familien macht.
Kosten
- Kaltmiete / Monat
- Gesamtmiete / Monat
- 1.500 €
- 1.570 €
Sie sehen gerade einen Platzhalterinhalt von Google Maps. Um auf den eigentlichen Inhalt zuzugreifen, klicken Sie auf die Schaltfläche unten. Bitte beachten Sie, dass dabei Daten an Drittanbieter weitergegeben werden.
Mehr Informationen






















